| A. Tisje |
|
||||||
| Ing.- und Planungsbüro GmbH |
Altes Baumaterial - Stein
|
||||||
| Home Willkommen Profile Kontakt Aktuelle Projekte Architektur- Leistungen: • Altbau - - Instandsetzung - - Wiederaufbau - - Replika • Neubau - - Wohnhäuser - - Sonderbauten Vermessung: - Gebäude - Grundstücke - Preise Energiepass Dendrochronologie: - Gutachten - Dendrobohrer- - Verkauf - Preise Architektur- Modellbau: - Modelle - historischer Häuser - Ausstellung - Fachwerkmodelle - Preise Altes Baumaterial: - Holz - Stein - Metall Kunst: - Skulpturen - Bilder - Preise Links AGB Impressum |
|
Solnhofner Platten
|
![]() |
![]() |
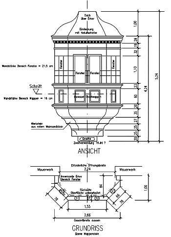
Sandsteinerker aus Hanau
2. Hälfte 19. JH

